深圳论坛

搜索 高级搜索
百宝箱
 注册 | 找回密码
查看: 9743|回复: 0
打印 上一主题 下一主题

深圳市规划和自然资源局光明管理局关于星源材质厂区总平面图设计调整事宜的公示

Rank: 27Rank: 27Rank: 27Rank: 27Rank: 27Rank: 27

深坛老友 深坛文豪

跳转到指定楼层
1
发表于 2020-6-11 08:40 |只看该作者 |倒序浏览

马上注册,知更多事,识更多人,玩转大深圳!

您需要 登录 才可以下载或查看,没有账号?注册

x

  深圳市星源材质科技股份有限公司申请变更“星源材质厂区”建设工程规划许可,涉及已批总平面图调整。现根据《中华人民共和国城乡规划法》相关规定予以公示:

  一、调整内容

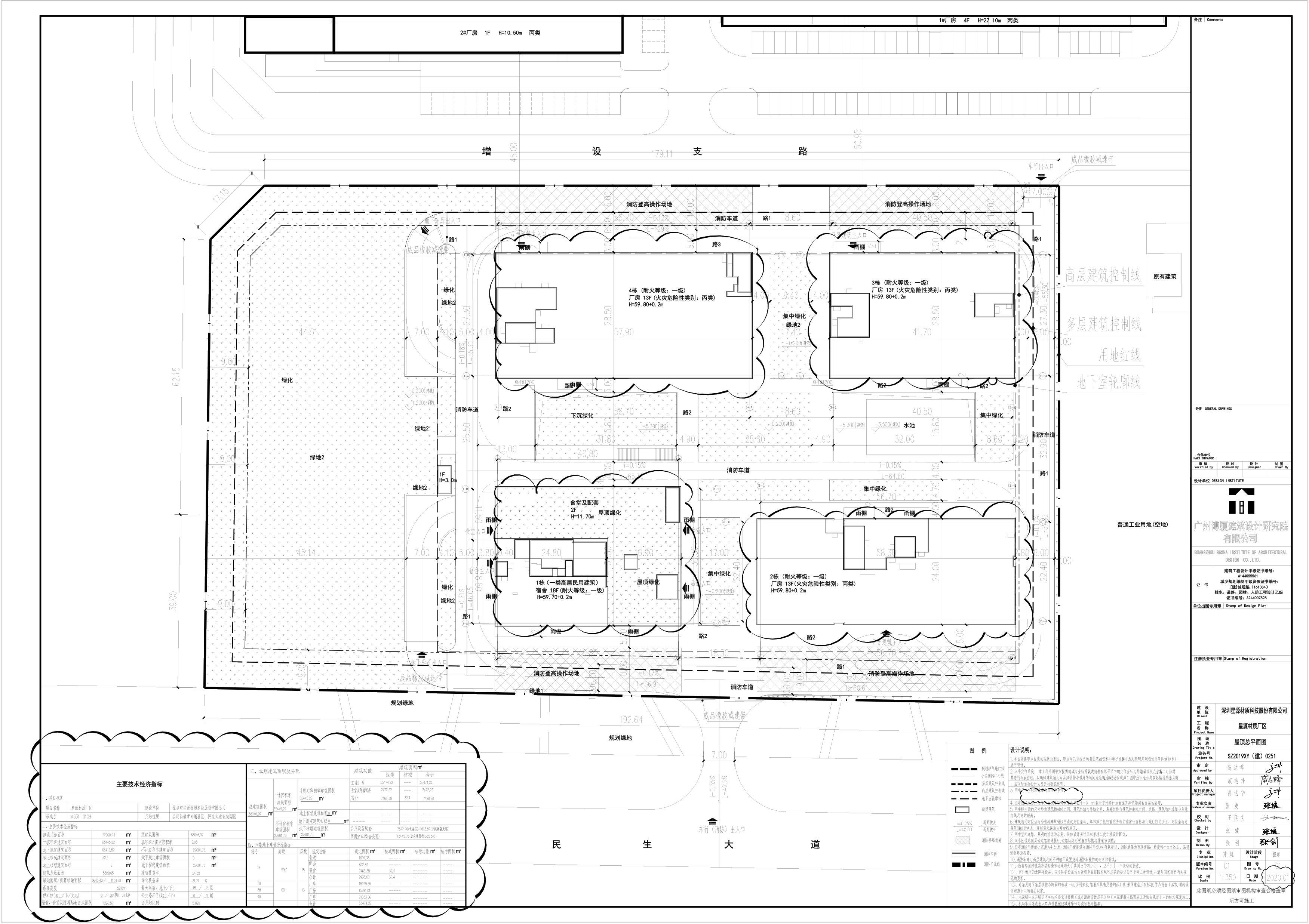
  星源材质厂区项目位于光明区马田街道,民生大道北侧、田园路西侧,于2019年4月取得《建设工程规划许可证》(深规土建许字GM-201-0011号)。本项目为普通工业用地,现尚未开工建设,建设单位因决策变更,对项目进行修改调整,调整的主要内容为(具体详见附件《屋顶总平面图》云线圈注部分):

  (一)设计单位变更为:广州博厦建筑设计研究院有限公司

  (二)建筑轮廓、建筑高度微调,具体为:

  ①1栋塔楼建筑轮廓由24.7M*19.2M调整为24.8M*19.2M,建筑高度由11.4米调整为11.6米。

  ②2栋建筑轮廓由59.1M*22.4M调整为58.3M*24M,建筑高度由59.8米调整为60米。

  ③3栋建筑轮廓由47.4M*29M调整为41.7M*28.5M,建筑高度由59.8米调整为60米。

  ④4栋建筑轮廓由47.4M*57.9M调整为57.9M*28.5M,建筑高度由59.8米调整为60米。

  本次修改不涉及建筑规定功能分类的调整,规定建筑面积指标由原《建设工程规划许可证》(深规土建许字GM-201-0011号)中63529.91平方米调整为65445.22平方米,修改后各项规划指标仍符合已发《建设用地规划许可证》(深规土许GM-2015-0032号)和《土地使用权出让合同》[深地合字(2015)7015号]及增补协议的规定要求。

  二、公示说明

  本通告公示期10个工作日(2020年6月10日-2020年6月23日)。公示期间如有异议,请实名联系深圳市规划和自然资源局光明管理局。本通告除在《深圳商报》公示外,同时在下列网站和实地发布:

  (一)网站

  1.http://www.szgm.gov.cn(光明区政府在线)

  2.http://pnr.sz.gov.cn(深圳市规划和自然资源局网站)

  3.http://pnr.sz.gov.cn/gm/(深圳市规划和自然资源局光明管理局网站)

  (二)实地

  1.光明区华夏二路土地储备大厦一楼大厅。

  2.光明区马田街道,民生大道北侧、田园路西侧项目现场。

  联系人:黄工

  联系电话:27409011

  联系地址:光明区华夏二路土地储备大厦(邮编518107)

  附件:屋顶总平面图

深圳市规划和自然资源局光明管理局

2020年6月10日


附件下载

屋顶总平面图.jpg



使用道具 举报

回复

快速回复主题

您需要登录后才可以回帖 登录 | 注册

  

     
您需要 登录 后才可以回复,没有帐号?立即注册 使用QQ帐号登录
高级模式意见反馈
fastpost
关闭
111返回顶部